BRIEF EXPLANATION OF SERVICES
What is CRYSTAL Clear? | From $129


What is AERIAL? | From $89
What is a VIRTUAL tour? | $19
• Crystal clear or HDR (high dynamic range) is a combination of 5 images at Repropix that represent different exposures and combined together produces an image close to the human visual system.
• Aerial photography is drone photography and video (like the one above). It is the images of property and land from an elevated angle or a bird view.
• Image virtual tour is a slideshow clip created from your ordered images. Mixed to the music, presented with youtube link for MLS.
What is 3D VIRTUAL? | From $179
What is a WALK-THROUGH? | From $269
NARRATED video? | For $299 more
• A three-dimensional property tour, created of Matterport 3D camera infra-red scans, lets real estate consumers remotely “walk through” a virtual model of a home.
• High definition video of your property. Filmed by a professional Steadicam operator, edited to licensed music, presented as a YouTube link.
• Professionally filmed and edited walk-through property tour with added studio narration (voice-over). Stronger presentation in a competitive market.
What is VIRTUAL Staging? | $29


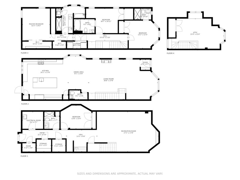
What is the FLOOR PLAN? | From $69


What is DAY to DUSK? | $29


• Decorate any empty room with furniture of your choice. Remove unwanted items, replace room colors.
• Floor plan is a drawing to scale, showing a view from above, of the relationships between rooms and spaces.
• We change the light from daylight to evening. But not only the sky and ambiance. Property lights and windows are lit, shadows removed.